欢迎来电咨询!可预约销售人员,专业一对一热情服务,让您用专业眼光去买房。(来电尊享内部优惠活动)
【2024楼盘详情·特价房源·户型分析·项目介绍·在售房源·样板间·周边配套】
项目简介:和光3.0作品「和光煦境」由保利发展与北京建工联手,倾力打造精智光幕大宅,一脉相承保利TOP级「和光」系经典产品,以光建筑空间迭新高端生活方式。
一条长安街半部建工史,长安街80%以上的建筑塑造者,是全球250家最大国际工程承包商之一,承建了包括人民大会堂,鸟巢、中央电视台、北京工人体育场,大兴机场等北京市绝大多数标志性工程,位列北京市属建筑企业之首。
责任央企,保国利民,肩负家国使命,诠释“和者筑善”。自1992年至今,砥砺多年,做到了央企第一,行业前三,世界500强,2021年《福布斯》世界排名第190位。千余项目、百万客户的成果积累,住宅、商业、酒店、公寓、会展等全业态的开发经验,成就了保利卓越的发展前景。
保利物业服务股份有限公司(,是央企上市的全国性大型物业服务企业,业内首批获物业管理一级资质的企业,也是全国具备军队管理文化的物业管理品牌,长期活跃在中国具有全球影响力的活动场馆,如冬奥会、杭州G20峰会等。
2022中国物业服务企业综合实力500强TOP32022中国国有物业服务企业综合实力50强TOP1”2022中国物业服务企业品牌价值100强2022中国智慧物业服务领先企业
保利高端产品系“和光”3.0,将诠释新一代人居理念。与世界和鸣,让建筑成为光、自然与人的容器,是“和光系”的品牌内涵,更是“和光系”产品的艺术轮廓。新一代续光作品将继续书写大师级作品,代言先进理念,实现现代建筑与经典美学的深度对话。势必成为继和光尘樾、和光逸境之后又一经典。和光系一般只选择核心城市稀贵区位,只定位豪宅,产品特色拥有超大窗墙比,270°转角飘窗,最大限度引入光元素,讲究建筑与光与人的更好融合~
项目位于国贸、望京、城市副中心三大黄金区交汇点,隶属朝青版图,近5年没有新批住宅用地,区域土地稀缺,不可复制,未来发展难以估量。地铁7站国贸,9站望京
国贸CBD:北京商务中心区,坐拥全市70%的跨国公司地区总部,是与纽约曼哈顿、香港中环比肩的商务中心区,更是北京对外开放的重要窗口。在国际消费中心城市建设中,北京明确提出将依托华贸、国贸、北京SKP等商业综合体,对北京CBD商圈开展提质升级,加速打造“千亿级规模世界级商圈”。
望京CBD:中国全球资本总部区,现汇集了宝马、奔驰总部、西门子、索尼爱立信、三星等世界500强企业,是北京世界500强企业聚集最多的地方。
户型层面,以受市场高度关注的建面约114㎡改善三居户型为例,三面宽阳光生活场设计、高得房率、落地窗客厅、0.5超大窗墙比、LDK宽厅阔景设计,独立家政间、主卧套房及270°美景飘窗,可以说每一处都是当下市场改善客的心头好。相比市场同类产品的局凑紧凑,和光煦境努力为精英人群定制更多舒阔空间,争取每一间都多开拓10-20厘米的采光尺度,缔造阳光通透生活场,同时项目恪守高标准精装修,采用科技、智能、健康、环保系统全方位解决室内的环境健康问题。智能家居六大系统全时守护家人生活,改善人生一步到位。
88平南北通透三居室,南向客厅+南向主卧+飘窗,保证了最大的采光面,餐客厨一体,双卫生间设计,非常适合刚需客户。
99平三居全明通透,南向三面采光+飘窗,主卧可270°观景,双卧朝南+主卧套设计,餐客厨一体,设有独立玄关和独立收纳间。
106㎡ 三室两厅两卫:南北通透5.5米边厅;270度转角飘窗;LDK客餐厨一体设计。
114㎡ 三室两厅两卫:南北通透三面宽,南向10.5米面宽,客厅4米大面宽;东边户270°飘窗;LDK客餐厨一体设计。
148㎡ 四室两厅两卫:经典四叶草户型,南北通透,客厅和两个卧室全部朝南,保证了最大的采光面,LDK客餐厨一体设计,两个卫生间,双明卫设计。
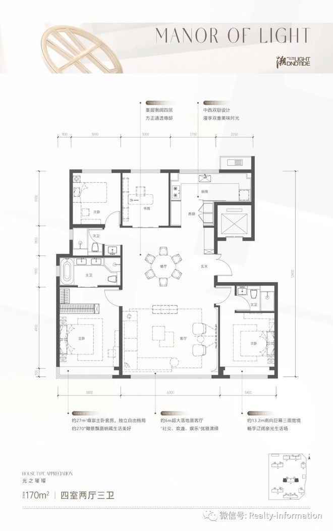
170㎡ 四室两厅三卫:一梯一户尊享空间,南北通透三面宽,南向13.2米面宽,客厅6米大面宽,LDK客餐厨一体设计。
社区会所:设有社区服务中心、花园咖啡厅与室外花园,全面提升宾客的到访礼仪。
宅间组团:绿色基底与亲切空间尺度构建宅间花园,营造出别具洞天的园林风景。
八大场景:立体多元园林功能空间,丰富场景塑造惬意、温暖、丰富的慢调生活。
入园即归家,人脸识别系统、车场管理系统、天使监控系统、地下环境监测系统、智能安防系统(电子巡更 周界防范 红外幕帘)、智能门禁系统、智能呼梯系统、可视对讲系统,让社区的每一份空间中,都有科技智慧的无形保护。
结构围护外墙+保温+外饰面三层防护,实现高效温度阻隔,减小室内能量流失。
双层隔音玻璃、兰舍新风系统、室内空气检测、直饮水系统,带来健康生活微生态。
0.5阔绰窗墙比远超市场0.3标准,让每个空间都能拥有尽可能多的光照时长。
室内设有集中控制系统、智能灯光控制系统、空调新风地暖控制系统、手机app控制、空气质量监测系统、智能电动窗帘,智慧健康触手可及全面守护您的私人生活。
临近朝阳大悦城+长楹天街两大商圈,作为新兴商业巨擎,拥有巨大的流量、前瞻的业态,满足10分钟超便捷生活消费配套。
南侧300M可达地铁6号线黄渠站,东西贯通北京商务中心与政治新中心。2站朝阳大悦城,5站可达北京副中心,6站工体,7站国贸CBD,9站可达望京 快速通达核心商圈。
朝阳北路:主城区与城市副中心的交通切换中枢,北京城区东西向经济、文化主动脉。
机场第二高速:市区东南部与机场联系的主要交通走廊。同时,可继续向南与京津第二高速相贯通。
北侧6000米,爱迪国际学校,凯文国际学校书香浓郁,为子女的未来打好基础。紧邻地块西侧为规划小学和规划幼儿园,举步可达。
同时周边汇聚了北京知名的十余所高尔夫俱乐部、马会,城市精英圈层社交的聚集地,生活与休闲社交随意切换。
马会:月河湾-孙河马场、北京天星调良国际马术俱乐部、蓝调国际马术俱乐部等。
东侧2.2公里,首都医科大学附属朝阳医院,大型综合三甲医院,呼吸科全国位列第七 ,1000个床位,56个诊疗科室,为家人健康保驾护航
城市正东,内城第一梯队新建居住区。项目所在的朝青板块七年来首次供应土地,承接CBD经济及居住人群外溢。稀贵地脉,再造一座“和光系”经典,匠筑典藏级时代人居样板。
1、保利+建工两大品牌联合打造:央企与国企双国匠联袂,深度参与朝阳建设,助力区域城市焕新。
2、朝青板块成熟红利:版块成熟度高,商圈环伺,生态饱满,是北京传统的豪宅区,朝青经过20年发展,已呈现所见即所得,所见即所享的丰盛现状,没有画饼,红利兑现。近5年来朝青板块土地供应量为零,积攒了大量改善需求,项目的不可复制性与绝版价值可想而知。
3、深耕朝阳10年:保利在朝阳的深耕已逾10年,保利东郡、和锦薇棠、和光尘樾、保利中央公园以及近两年在售的销冠项目保利锦上、保利锦上二期,都是保利在朝阳的深研和诚意之作。
4、北京高端产品系→和光系:继和光尘樾、和光逸境之后又一经典。方正通透户型,高得房率,0.5开阔窗墙比,搭配独立家政间,南向双卧飘窗,主卧270°转角飘窗。
5、生态宜居:10大生态公园环绕,尽享丰富城市休闲资源,与项目周边公园形成了良好的生态系统,提供了宜居之所。
预约热线】欢迎来电咨询!可预约销售人员,专业一对一热情服务,让您用专业眼光去买房。(来电尊享内部优惠活动)
【2024楼盘详情·特价房源·户型分析·项目介绍·在售房源·样板间·周边配套】
